The Nordic Embassy in Mozambique

  • Client

    The Danish Ministry of Foreign Affairs, Statsbygg

  • Collaborators

    EKJ A/S

  • Location

    Maputo, Mozambique

  • Area

    3,000 m²

  • Status

    Completed in 2000

The Nordic Embassy in Mozambique

Built shortly after the end of the civil war in 1992, the intention with the Nordic Embassy in Mozambique was to support the country’s restoration and budding democracy. The experimental period of modern architecture in Mozambique in the 1950s and 60s inspire the embassy, referencing Álvaro Siza combined with technical solutions inspired by American architect Louis Kahn. It was realised with the skills of Mozambican artisans and the use of local materials.

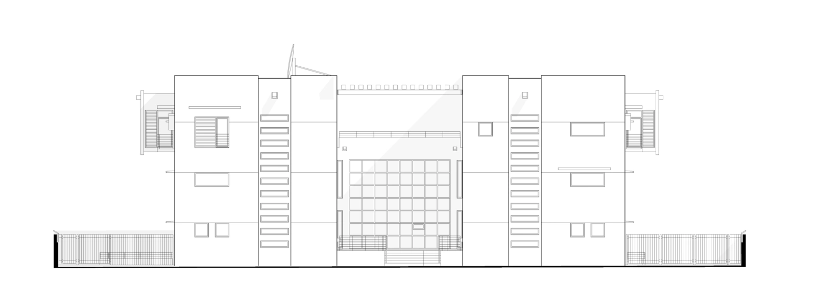
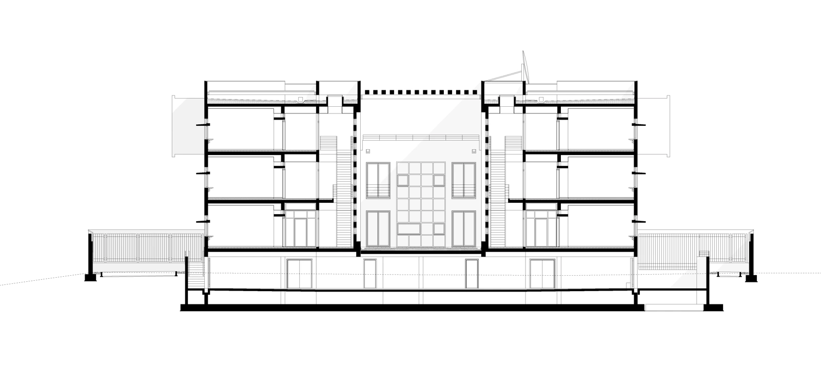
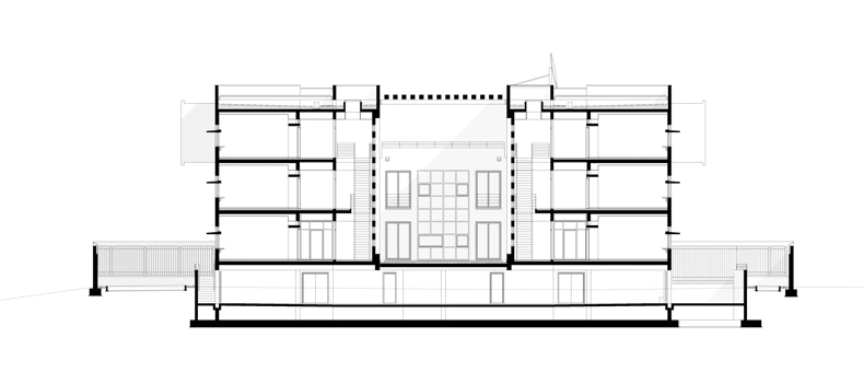
Formed by two symmetrical buildings, the Nordic Embassy represents Denmark and Iceland in one and Norway in the other. As Denmark and Norway were large contributors of development assistance after the civil war, the joint embassy also has an expat area for the Danish International Development Agency, DANIDA.

The embassy appears as a streamlined monolith, subdivided into two independent representations with a common building in between. A roof-height steel pergola underpins the concept of an overall entity and the joint facilities that the users share: the library, meeting rooms, the canteen, and the kitchen. In materiality, volume and window proportions, the building relates to the local climate.

The floors are made of local Chanfuta wood, and local carpenters made all carpentry details. The white-painted concrete walls are uncomplicated surfaces that are easy to maintain. The details around windows and doors – as well as recesses and enclosures for privacy, and protection against the strong sunlight – emerge naturally out of the overall simplicity of the building.

The embassy garden area is a mixed composition of local trees and plants, such as the African flame tree. The white-painted walls encompass the three-winged, terrace brick-tiles, which for the most part are kept cool and shady by a constructive solution.

Inspired by the architect Louis Kahn, the roof of the terrace is a steel-slated pergola that cools down the outdoor area by generating natural ventilation from hot air rising from the flooring. Simultaneously, it connects the embassy buildings and symbolises the cooperation between the Nordic countries.

‘First, we studied the local buildings and architecture and then we began to treat the building as a block we could cut and mould into a clean and simple composition.’

Torsten Stephensen, partner at Vilhelm Lauritzen Architects

More projects
Water Culture House
The Vilhelm Lauritzen Terminal - Copenhagen Airport
The Radio House