DHI

  • Client

    DTU Science Park

  • Team

    Hoffmann A/S, Rambøll A/S, and JL Engineering

  • Location

    Agern Alle 5, DK-2970 Hørsholm

  • Size

    6,000 m²

  • Status

    Completed in 2019

  • Certifications

    DGNB Silver

  • Tenant

    DHI

Tailored for world leading aquatic research

Located in a small forest north of Copenhagen, nature inspired the new domicile of the global, aquatic R&D company DHI at the DTU Science Park. The building is designed with a focus on area and flow optimisation while utilising the unique surroundings to create a connection between outside and inside.

A winding in-situ cast forest path leads visitors past a small lake to the domicile building of DHI, a life science company specialised within the field of water consultancy. Built in relation to DHI’s neighbouring laboratory facilities, it forms a dynamically linked life science complex. Here, user involvement has been a key part of the design process with a vision for the new domicile to reflect DHI’s identity and work with water in nature.

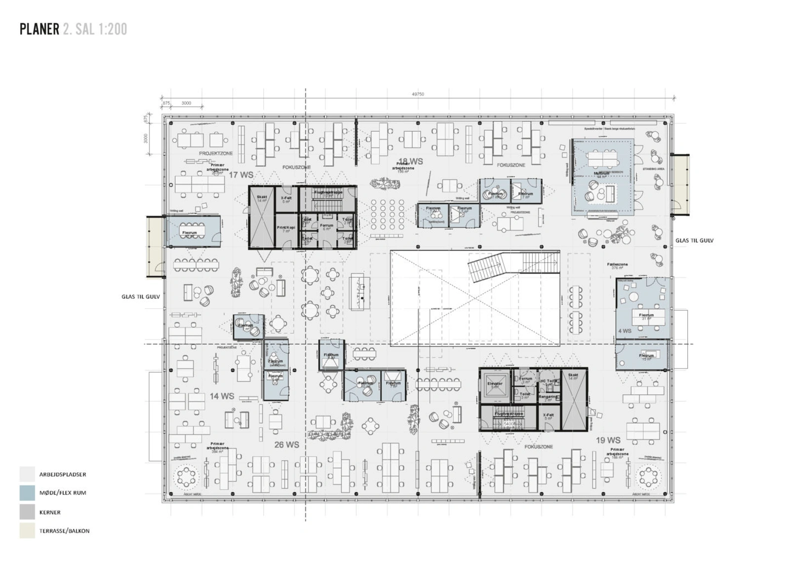
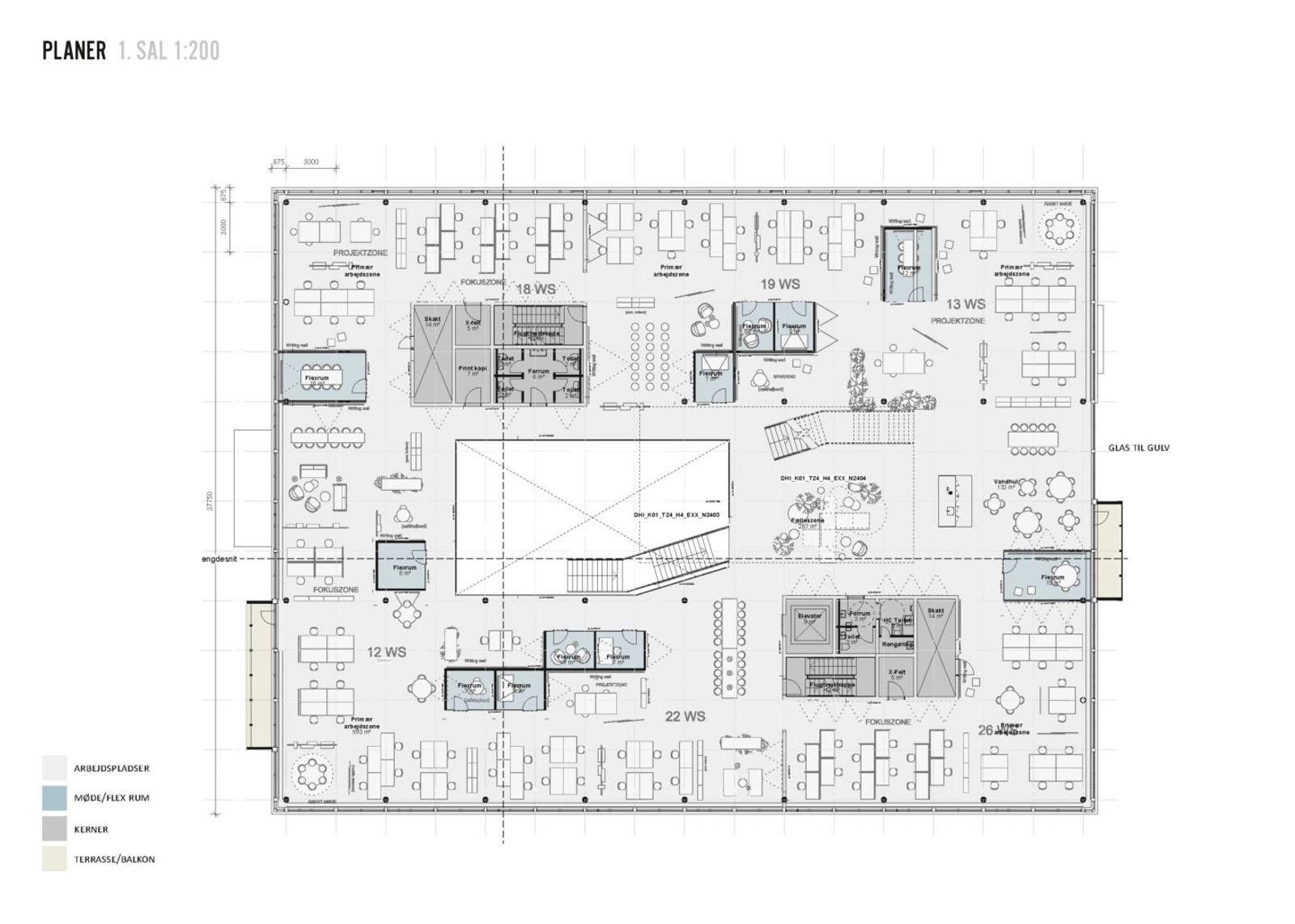
Accommodating flow and collaboration 

The daily work of DHI’s employees is project-oriented with collaboration between different professional competencies. To accommodate this, the design promotes activity-based workflows with a special focus on reducing corridor areas, optimizing internal flow and flexibility.

The interior sees a combination of atrium holes and a core displacement, which creates movement and a spatial variety. Simultaneously, it forms an opening of the arrival area with a diagonal forest view, while daylight flows vertically through ceiling skylights.

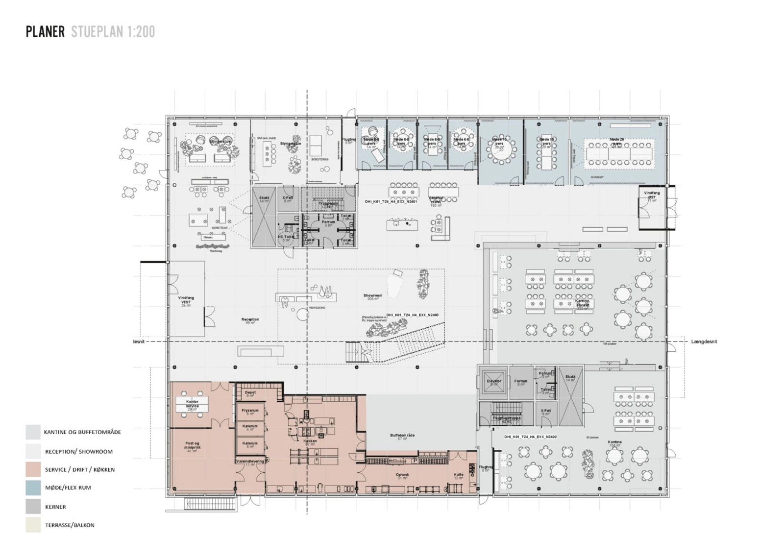
The ground floor is generous with a reception, meeting facilities, lounge area, art zone and an open, lowered canteen with access to the outdoors and full forest views. The first and second floors are characterised by office facilities. Each floor holds primary work zones with several different break out and focus zones as well as a ‘water hole’ café.

Anchored in DHI’s maritime identity

The harbour environment has been a conceptual starting point for the choice of raw and honest materials, such as wood, concrete, glass, and steel that induce a clean, yet warm Nordic feel.

Raw concrete load-bearing wall and cores are combined with wooden details recycled from felled trees of the site. By using wood in the cast forms, the concrete walls bear imprints that reference the surroundings. The colour tone of the atrium is set by the stairways, rails and guards in warm unprocessed steel with a user-friendly detail of oak handrails. The floor is polished concrete.

Throughout, the project kept a sustainable focus and received the sustainability certificate DGNB Silver – granted to projects with a life cycle focus on ecology, economy and socioculture.

Other projects
Novonesis Headquarters
The Niels Bohr Building
Life Mobile Lab